
Nowoczesne mieszkania w zabudowie szeregowej
O Inwestycji
Osiedle Kościuszki to realizowana w bezpośrednim sąsiedztwie Rzeszowa inwestycja, zapewniająca komfort spokojnej okolicy i dogodnego połączenia z centrum, dająca możliwość zamieszkania w przytulnym mieszkaniu z zielonym ogrodem i miejscami parkingowymi.
To zlokalizowany w Tyczynie przy ul. Kościuszki kompleks budynków w zabudowie szeregowej z mieszkaniami powierzchni parter 67,4 i 73,83 m2 oraz budynkiem usługowo-handlowym.


Nowoczesny wygląd budynków mimo zachowania tradycyjnej bryły, ograniczającej straty ciepła zapewniają duże przeszklenia okien, szklane balustrady, rolety i elementy dekoracyjne na elewacjach. Całość zaprojektowana z atestowanych materiałów najwyższej jakości ze szczególnym uwzględnieniem parametrów wpływających na komfort użytkowania.
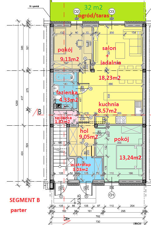
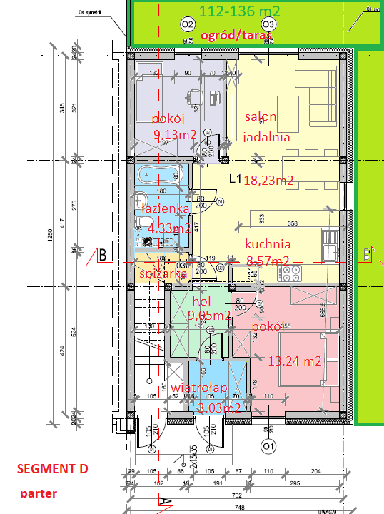
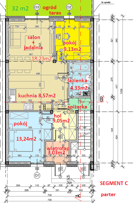
Parter zajmuje niezależne mieszkanie o powierzchni 67,40 m2 z wiatrołapem, holem, spiżarką, łazienką, z połączonymi salonem, jadalnią i kuchnią oraz dwoma niezależnymi pokojami. Całość uzupełnia zielony ogród przyległy do salonu i jednego z pokojów.
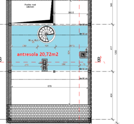
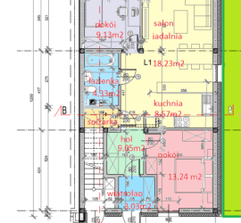
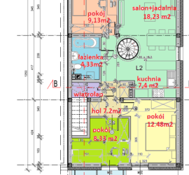
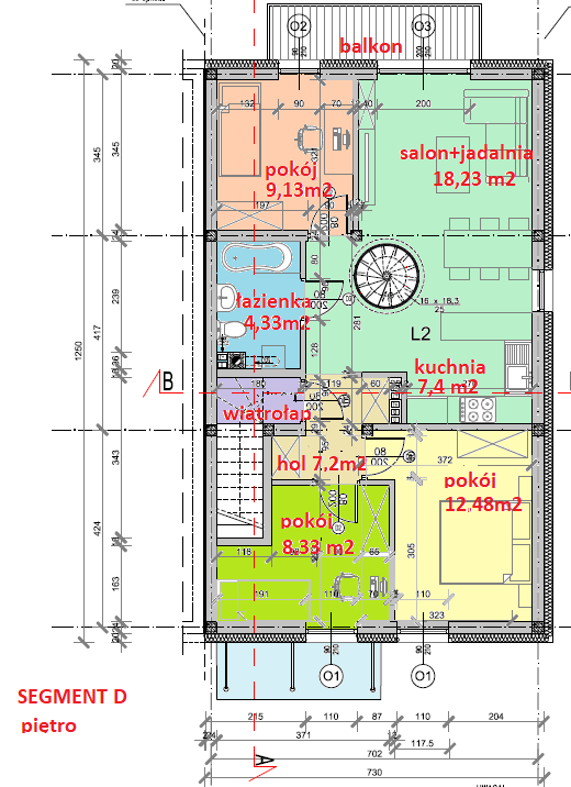
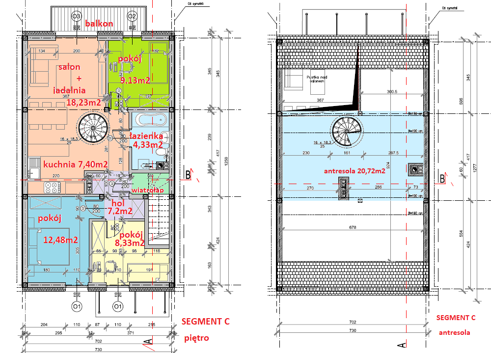
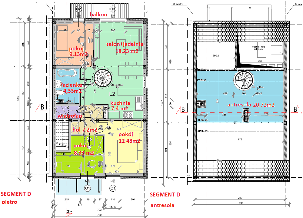
Piętro to dwukondygnacyjne mieszkanie o powierzchni 73,83 m2 z antresolą o powierzchni 20,72 m2 niezależnym wejściem i własną klatką schodową. Trzy niezależne pokoje, łazienka oraz połączone kuchnia, salon i jadalnia stanowią wymarzoną przestrzeń do życia dla całej rodziny. Przestrzeń tę powiększają antresola na którą prowadzą okrągłe schody oraz duże balkony z nowoczesnymi barierkami.
Budynki wyposażone w panele fotowoltaiczne, które pozwolą zaoszczędzić na energii elektrycznej oraz gazie lub całkowicie wyeliminować rachunki za te media.
Zalety
Osiedle Kościuszki to doskonała lokalizacja w odniesieniu do istniejącej i nowoprojektowanej struktury komunikacyjnej aglomeracji miejskiej!
- Malownicza i spokojna dzielnica Tyczyna
- Dużo terenów zielonych
- Miejsce postojowe do każdego mieszkania
- Szybki dojazd do centrum miasta zmodernizowaną ul.Sikorskiego
- Market techniczno-budowlany i spożywczy w bliskiej odległości
- Plac zabaw dla dzieci
- Dogodny dojazd do lokalnych szkół, przedszkoli, urzędów
- Bezpośrednie połączenie komunikacją miejską z centrum Rzeszowa
- Wysoki poziom energooszczędności budynku
- Fotowoltaika w cenie do każdego mieszkania

Dom kultury

Przedszkole

Szkoła podstawowa

Przychodnia

Sklep spożywczy

Przystanek MPK

Kościół
Dostępność
Segment D1 parter
- Powierzchnia: 68 m2
- Działka: 1,98 ar
- Miejsce parkingowe
DOSTĘPNE
- D14
- A17
- D18
- A21
- D22
- A26
Segment D1 piętro
- Powierzchnia: 74 m2
- Antresola: 22 m2
- Miejsce parkingowe
DOSTĘPNE
- D14P
- A17P
- D18P
- A21P
- D22P
- A26P
Segment C1 parter
- Powierzchnia: 68 m2
- Działka: 1,28 ar
- Miejsce parkingowe
DOSTĘPNE
- C15
- B16
- C19
- B20
- B23
- C24
- B25
Segment C1 piętro
- Powierzchnia: 74 m2
- Antresola: 22 m2
- Miejsce parkingowe
DOSTĘPNE
- C15P
- B16P
- C19P
- B20P
- B23P
- C24P
- B25P
Standard inwestycji
STAN SUROWY ZAMKNIĘTY
- Płyta fundamentowa z betonu wodoszczelnego, zbrojona, na stabilizowanym podłożu i podkładzie z chudego betonu.
- Dodatkowa izolacja przeciwwilgociowa płyty fundamentowej oraz termiczna izolacja krawędziowa. Warstwa drenażowa odprowadzająca wodę z okolic budynku.
- Ściany nośne z betonu komórkowego 18 i 24 cm grubości
- Schody wylewane żelbetowe
- Kominy systemowe
- Nadproża, słupy, podciągi, wieniec górny żelbetowe, zbrojone
- Strop nad parterem (monolityczny) wylewany żelbetowy
- Strop nad piętrem [antresola] – belki drewniane
- Więźba dachowa impregnowana
- Dach kryty blachodachówką grafitową RAL 7016 . 30 lat gwarancji
- Rynny i rury spustowe stalowe RAL 7016
- Okna PCV 3 szybowe, profil VEKA 82, kolor winchester/ biały montowane na podkładzie z XPS
- Parapety zewnętrzne z blachy powlekanej kolor winchester
- Drzwi zewnętrzne wejściowe stalowe, antywłamaniowe, z izolacją termiczną, kolor winchester
- Ścianki działowe bloczek z betonu komórkowego 12 cm
- Instalacja elektryczna plus tablica
- Instalacja alarmowa [okablowanie]
- Instalacja TV i internetowa [światłowód]
- Elewacja ocieplona styropianem EPS 70 .20 cm + tynk kolor ecru, dodatkowo deska elewacyjna kolor winchester. Cokół wykończony płytką ceramiczną w kolorze szarym.
- Balustrady zewnętrzne szkło hartowane, zadaszenia systemowe.
STAN DEWELOPERSKI
- Instalacja C.O. system ALUPEX
- Instalacja wodno-kanalizacyjna [Alupex, PCV]
- Instalacja kanalizacji deszczowej
- Instalacja gazowa, kocioł gazowy dwufunkcyjny, kondensacyjny
- Tynki wewnętrzne cementowe
- Biały montaż instalacji elektrycznej tj. włączniki, gniazdka
- Wylewki maszynowe z izolacją styropianową EPS100 2x10cm
- Poddasze ocieplone wełną mineralną, folią paroizolacyjną oraz z płytą karton-gips
- Ogrzewanie podłogowe: wiatrołap, kuchnia
- Grzejniki płytowe
- Ogrodzenie od strony ogródka z systemowej siatki powlekanej kolor grafit
- Chodniki z kostki betonowej kolor grafit/szary
- Fotowoltaika do każdego mieszkania
- Ładowarka zewnętrzna do pojazdów elektrycznych
DODATKOWE [OPCJONALNE] USŁUGI
- Schody okrągłe na antresolę
- Grzejniki drabinkowe do łazienek
- Płytki w klatce schodowej
- Miejsce na rowery.
Kontakt
KP Developer Sp. zoo
ul. Lubelska 22
35-233 Rzeszów
Biuro czynne:
pon-piątek: 8.00 – 16.00
www.osiedlekosciuszki.ipr.pl






















